BUDYNEK WARSZTATU TERAPII ZAJĘCIOWEJ Z RESTAURACJĄ I KRĘGIELNIĄ W KAMIENIU POMORSKIM

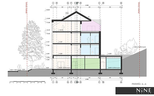
Wielofunkcyjny budynek o szerokim spektrum wykorzystania zaprojektowano w Kamieniu Pomorskim przy ul. Mikołaja Kopernika w Kamieniu Pomorskim. Obiekt posiada cztery kondygnacje nadziemne, przy czym część północna budynku przewidziana została jako parterowa, nad którą znajduje się ogólnodostępny z parteru taras rekreacyjny porośnięty niską zielenią.

 

Prostą bryłę oparto na planie prostokątnym z częściowo podciętym parterem od strony północnej, zgodnie z załamaniem ulicy, przy której został usytuowany budynek. Dach zaprojektowano jako dwuspadowy z oknami połaciowymi oraz lukarnami, które łączą się z pilastrami elewacji podkreślając strefę wejścia głównego i przeszklonej klatki schodowej.

 

Podstawową funkcją budynku zajmującą pierwsze i drugie piętro, będą usługi związane z rehabilitacją dzieci oraz dorosłych, która będzie prowadzona w ramach Powiatowego Centrum Pomocy Rodzinie w Kamieniu Pomorski i Warsztatu Terapii Zajęciowej. Wchodzą w nią sale ćwiczeń, sale terapeutyczne, gabinety lekarskie oraz pomieszczenia integracyjne. Na najwyższej kondygnacji przewidziano pokoje dla osób będących pod opieką WTZ w ramach PCPR- wszystkie posiadają osobne łazienki dostosowane dla osób niepełnosprawnych.

 

Na parterze zaprojektowano zaplecze techniczne, restaurację z kuchnią, sale wielofunkcyjną, zaplecze sanitarne, socjalne oraz kręgielnię z trzema torami, która wraz zapleczem gastronomicznym dostępna będzie dla wszystkich, w tym dla mieszkańców z najbliższej okolicy.

PROJEKT: Budynek Warsztatu Terapii Zajęciowej z restauracją i kręgielnią w Kamieniu Pomorskim

 

DESIGN: NINE ATELIER | Kamil Bożętka

 

INWESTOR: Powiatowe Centrum Pomocy Rodzinie w Kamieniu Pomorskim

 

PROJEKT: kwiecień 2016

 

STADIUM: projekt koncepcyjny

 

REALIZACJA: 2019 - 2020

 

LOKALIZACJA: Kamień Pomorski

 

POWIERZCHNIA UŻYTKOWA: 2 301,52m2

 

WIZUALIZACJE: NINE ATELIER | Kamil Bożętka

 

ZLECAJĄCY: INŻ-BUD Wałcz

PCPR Kamień Pomorski, nowy budynek w Kamieniu Pomorskim, nowa inwestycja w Kamieniu Pomorskim, nowa kręgielnia w projektowanym budynku Warsztatu Terapii  Zajęciowej, nowoczesny budynek rehabilitacyjny, nowa inwestycja w województwie zachodniopomorskim, nowoczesna ceglana elewacja, portfenetre, restauracja Kamień Pomorski,  Powiat  kamieński, architekt Kamień Pomorski, projekty indywidualne , adaptacja projektów typowych w Kamieniu Pomorskim, szukam dobrego architekta woj. zachodniopomorskie, dach z blachy na rąbek stojący, projektant Kamień Pomorski, nowoczesny budynek usługowy, analiza terenu, studium, warunki zabudowy Kamień Pomorski, jak wybudować dom, Kamień Pomorski, pracownia projektowa zachodniopomorskie, projekt typowy domu, nowoczesny dom, dom parterowy, nowoczesna stodoła nad morzem, zdolny architekt super elewacja nowoczesny design

© 2021 N I N E A T E L I E R All Rights Reserved.