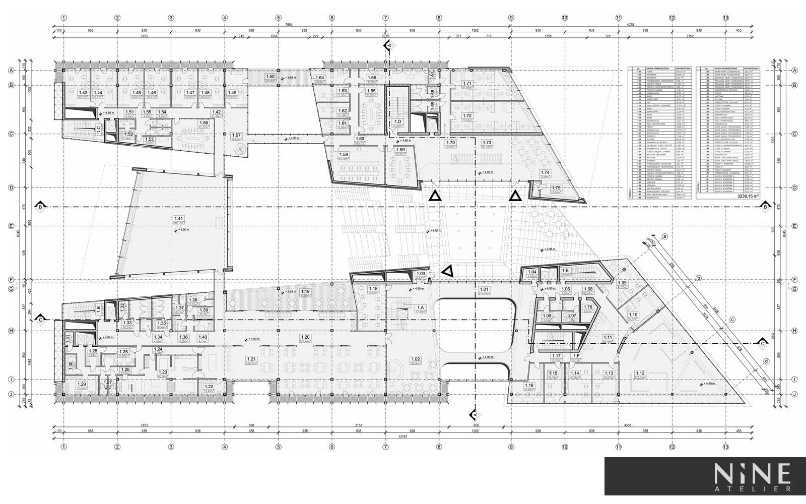
POZNAŃSKIE MIĘDZYUCZELNIANE CENTRUM ROZWOJU PRZY ALEI NIEPODLEGŁOŚCI W POZNANIU

Ideą przewodnią opracowanego budynku jest jego przeznaczenie edukacyjne, które służyć ma koncentracji, wytyczaniu i wprowadzaniu w życie pomysłów i kierunków rozwoju poznańskich uczelni wyższych. Obiekt w zamyśle podzielony został na kilka stref funkcjonalnych, służących do nawiązywania współpracy pomiędzy władzami szkół wyższych na różnych polach działania, co doprowadzić ma do rozwoju placówek naukowych, rozkwitu oferty edukacyjnej i jakości nauczania.

 

PMCR służyć ma nie tylko władzom uczelni, ale również studentom, przedsiębiorcą, okolicznym mieszkańcom oraz szeroko rozumianemu społeczeństwu. Dlatego też, na położenie budynku zostało wybrane miejsce na granicy ścisłego centrum miasta, w którym łączy się wiele funkcji i możliwości progresji. Obecnie jest to miejsce chaotyczne urbanistycznie, dzięki ulokowaniu PMCR, osiągnie zupełnie nową jakość przestrzeni w skali miasta (pod względem architektonicznym jak i urbanistycznym).

 

Osiągnięcie założonego celu umożliwi realizacja projektu w przyszłości, a przede wszystkim reorganizacja urbanistyczna północno-zachodniej części ścisłego centrum. Uzyskać można to dopełniając i kontynuując założenie urbanistyczne jakim jest tzw. Ring Stubbena, doprowadzając go do zamknięcia wokół historycznej części miasta, która została wytyczona na obrysie nieistniejących już umocnień Twierdzy Poznań.

PROJEKT: Poznańskie Międzyuczelniane Centrum Rozwoju przy Alei Niepodległości w Poznaniu

 

DESIGN: NINE ATELIER | Kamil Bożętka

 

PROJEKT: lipiec 2011

 

STADIUM: projekt koncepcyjny

 

LOKALIZACJA: Al. Niepodległości, Poznań

 

POWIERZCHNIA UŻYTKOWA: 25 624,0m2

 

WIZUALIZACJE: NINE ATELIER | Kamil Bożętka

 

PROMOTOR: dr inż. arch. Tomasz Jastrząb

 

INNE: Projekt powstał jako praca dyplomowa na Wydziale Architektury Politechniki Poznańskiej w Zakładzie Architektury Usługowej i Mieszkaniowej.

architektura w Poznaniu, projekt dyplomowy na wydziale architektury, Wydział Architektury Politechniki Poznańskiej, egzamin dyplomowy na architekturze, Ring Stubbena Poznań, Aleje Niepodległości Poznań, nowoczesna architektura w  Poznaniu i wielkopolsce, architekt nowoczesne projekty Poznań, adaptacje projektów typowych Poznań, Arcada pracownia architektoniczna, TJA gr inż. arch. Tomasz Jastrząb, student architektury Kamil Bożętka, plansze projektu architektonicznego, makieta budynku, architekt Poznań, pracownia projektowa  Poznań, dobry architekt, projekty wnętrz Poznań, adaptacja projektów typowych Poznań i okolice, Politechnika Poznańska, Uniwersytet Przyrodniczy w Poznaniu, Akademia Sztuk Pięknych w Poznaniu, Uniwersytet Medyczny w Poznaniu, Uniwersytet Adama Mickiewicza w Poznaniu

© 2021 N I N E A T E L I E R All Rights Reserved.