BUDYNEK USŁUGOWY Z TOALETĄ MIEJSKĄ W PŁOCKU

W Płocku przy alei spacerowej im. Antoniego Roguckiego zlokalizowanej na Osiedlu Łukasiewicza zaprojektowaliśmy obiekt w nowoczesnej, ponadczasowej i minimalistycznej formie. Przeznaczenie budynku odpowiada na potrzeby tworzącego się w tej okolicy miejsca rekreacji i odpoczynku dla okolicznych mieszkańców.

 

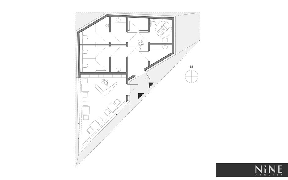
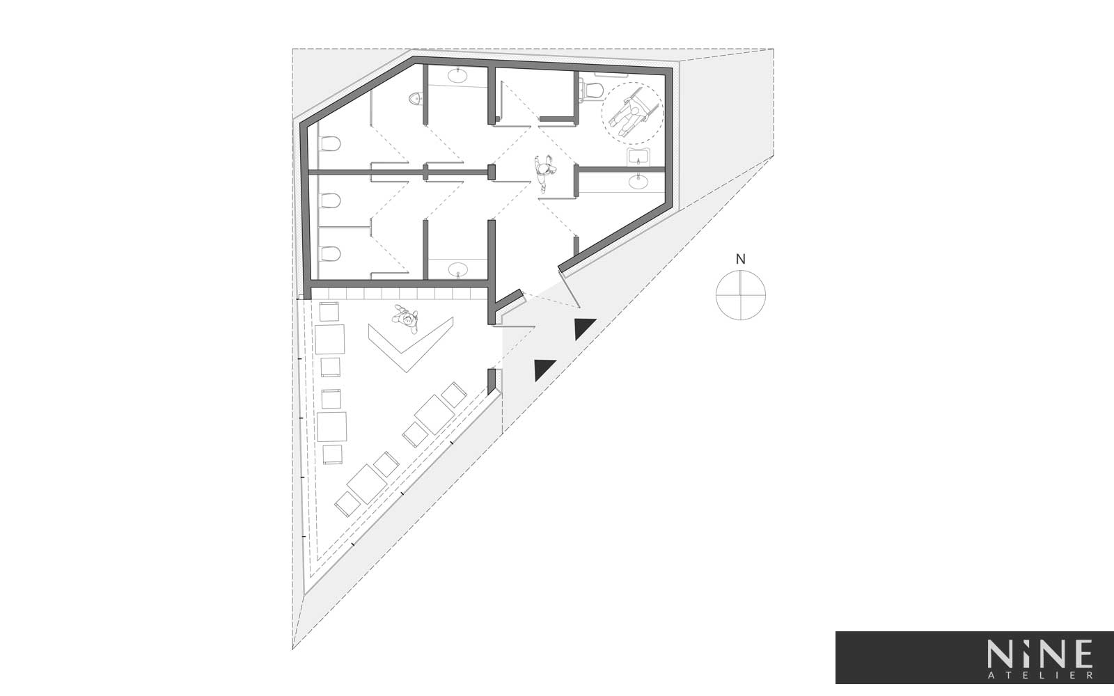
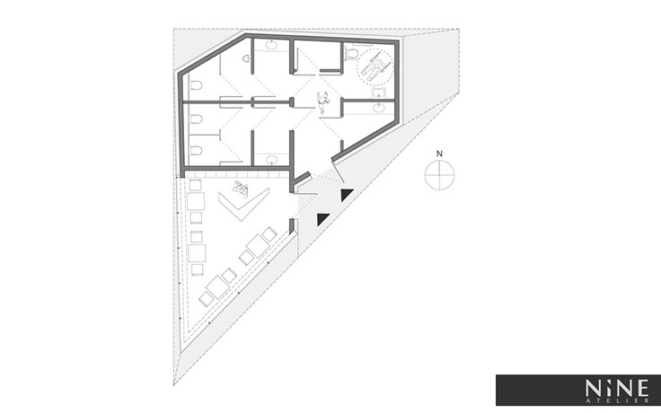
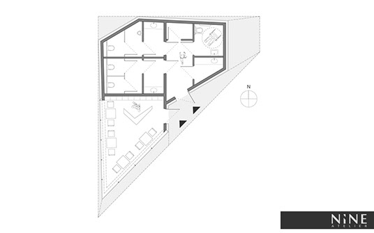
Przewidziano dwie podstawowe funkcje dla budynku- funkcja handlowo-usługowa (kawiarnia lub sklepik) oraz sanitarna, w postaci toalety miejskiej dostosowanej dla potrzeb osób niepełnosprawnych. Dodatkowo w budynku przewidziano węzeł techniczny obsługujący projektowane pomieszczenia.

 

Przed budynkiem zlokalizowano dodatkowo urządzenie informacyjno-reklamowe w postaci podświetlanej tablicy (CityLight) oraz miejsce odpoczynku, w formie dużych i wygodnych ławek, uzupełnionych o stojak dla rowerów.

 

Budynek zaprojektowano jako całoroczny, wolnostojący, jednokondygnacyjny i niepodpiwniczony, o konstrukcji tradycyjnej murowanej z elementami żelbetonowymi. Elewacje trójwarstwowe z izolacją z wełny mineralnej i warstwą wykończeniową przewidziano z laminowanych płyt włókno-cementowych w kolorze białym i pomarańczowym na stelażu stalowym.

 

Forma obiektu jest wynikiem analizy otoczenia, kształtu działki, funkcji budynku, występujących w sąsiedztwie materiałów i kolorystyki oraz potrzeby zwiększenia atrakcyjności miejsca i przyciągnięcia mieszkańców do czynnego odpoczynku na świeżym powietrzu.

PROJEKT: Budynek usługowy z toaletą miejską w Płocku

 

DESIGN: NINE ATELIER | Kamil Bożętka

 

INWESTOR: Urząd Miast Płock, Sanitec Kolo

 

PROJEKT: maj 2016

 

STADIUM: projekt konkursowy Sanitec Kolo 2016

 

LOKALIZACJA: Płock, woj. mazowieckie

 

POWIERZCHNIA UŻYTKOWA: 80,5m2

 

POWIERZCHNIA ZABUDOWY: 100,0m2

 

KUBATURA: 379,9m2

 

ZDJĘCIA / WIZUALIZACJE: NINE ATELIER | Kamil Bożętka

toaleta miejska wolnostojąca, architekt Płock, architektura nowoczesna, nowa jakość na osiedlu, nowa inwestycja w Płocku, nowoczesny budynek, modernistyczny budynek, architekt z Poznania zaprojektował piękny budynek w Płocku, konkurs architektoniczny Płock, praca konkursowa, konkurs architektoniczny Koło 2016, konkurs Koło 2017, konkurs ba budynek 2018, konkurs Sanitec Koło 2019, wysokie nagrody, adaptacja projektów typowych Płock, architekt wnętrz szukam w Płocku, aranżacja wnętrz, projekt budynku w parku, uprawniony architekt projekty, studio projektowe, pracownia architektoniczna z Poznania, nowoczesne domy, dom parterowy, projekt indywidualny Płock, szukam projektu nowoczesnego domu, projekty budynków usługowo-handlowych,  projekt budynku wielorodzinnego, projekty deweloperskie, nowy dom

© 2021 N I N E A T E L I E R All Rights Reserved.

POWIERZCHNIA ZABUDOWY: 100,0m2

KUBATURA: 379,9m2