DOM JEDNORODZINNY W POZNANIU - STRZESZYN

Dom jednorodzinny o dwóch kondygnacjach mieszkalnych zlokalizowano w północno-zachodniej, willowej dzielnicy Poznania - Strzeszynie.

 

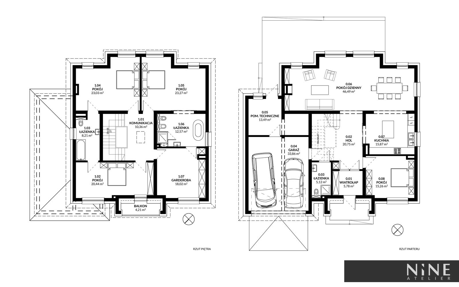
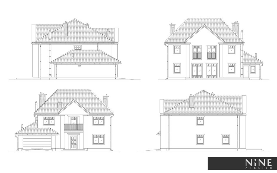
Zaprojektowany budynek odznacza się prostą bryłą, opartą na rzucie kwadratu z wysuniętą od frontu loggią i od tyłu ryzalitu, przy którym usytuowano duży taras prowadzący na ogród.

 

Biała elewacja charakteryzuje się prostotą oraz regularnymi podziałami otworów okiennych i zakończona jest jasno popielatym okapem kopertowego dachu, który pokryty został prostą dachówką ceramiczną w kolorze antracytowym.

 

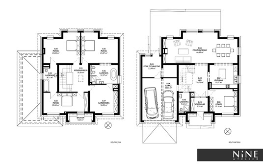
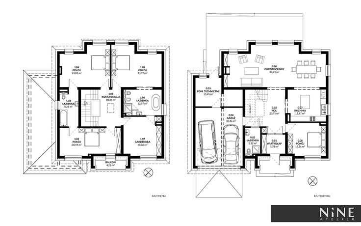
Budynek posiada prosty podział na część dzienną w parterze i nocną na piętrze. Na parterze po wejściu przez wiatrołap zlokalizowano przestronny hol połączony z efektowna klatką schodową, prowadzącą na piętro. Otwarty hol łączy się bezpośrednio z dużym pokojem dziennym połączonym funkcjonalnie z jadalnią, obok której przewidziano przestronną kuchnię. Przy holu przewidziano łazienkę oraz garaż z węzłem technicznym.

Na piętrze bezpośrednio z klatki schodowej,  przewidziano trzy sypialnie z których jedna posiada prywatny salon łazienkowy, a dwie wspólną łazienkę. Z pokoju w części frontowej budynku zaprojektowano loggię oraz przestronną garderobę.

PROJEKT: Dom jednorodzinny w Poznaniu - Strzeszyn

 

DESIGN: NINE ATELIER | Kamil Bożętka

 

INWESTOR: prywatny

 

PROJEKT: październik 2017

 

REALIZACJA: 2018

 

LOKALIZACJA: Poznań, dzielnica Strzeszyn

 

POWIERZCHNIA UŻYTKOWA: 265,6m2

 

WIZUALIZACJE: NINE ATELIER | Kamil Bożętka

 

PROJEKTY BRANŻOWE: Biuro projektowo - usługowe KONSTRUKCJE, KKARCHI,  PiN Baraniak - Projektowanie i Nadzór

indywidualny projekt domu jednorodzinnego w Poznaniu, architekt Poznań, architekt Kórnik, szukam architekta Buk, poszukiwany dobry architekt, Poznań nowoczesna stodoła, wielkopolska projektant wnętrz, Poznań adaptacja projektu typowego, nowoczesna architektura Poznań, projekty pięknych budynków, adaptacja projektów typowych, projekty katalogowe adapratacja Poznań, wizualizacje budynków Poznań, projekt nowoczesnego dworku, domy w dzielnicy willowej, Kamil Bożętka Architekt IARP,  projekt nowoczesnego domu, nowoczesne projekty architektoniczne, szukam dobrego projektanta wnętrz Poznań, Kalisz, Ostrów, wielkopolska, Konin, Kórnik, projekt domu Lusowo, dom Chyby, projekt ogrodu okolice Poznania, projekt elewacji i modernizacji budynku w okolicach Poznania, polecam pracownię architektoniczną NINE ATELIER, tanie projekty domów

© 2021 N I N E A T E L I E R All Rights Reserved.